Waschtische
TOPLINE
variable Waschtische
Gerundet
KITA
Barrierefrei
SANITURA Waschrinnen
Materialien/Farben
Mineralwerkstein
PRISMA
GraniCOR CTM matt
GraniCOR CTS seidenglanz
GraniCOR VM solid surface
Download
Referenzen
Kontakt
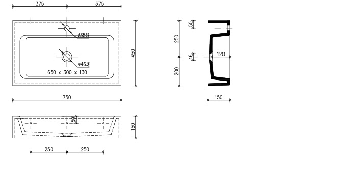
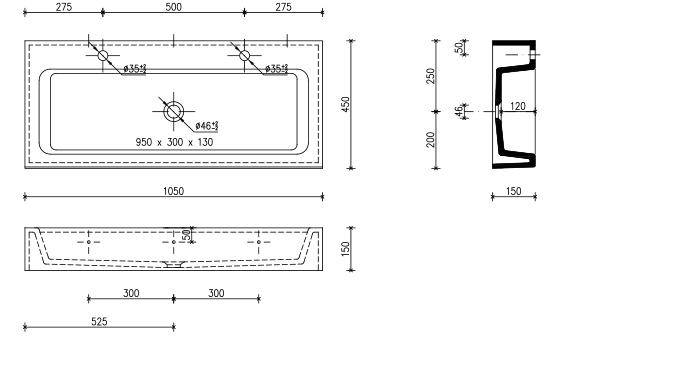
ENFANT
Waschrinnen in kindgerechten Tiefen
Unsere Serie ENFANT erhalten Sie als Fixmaß mit verschiedenen Beckenbreiten.
ENFANT 1 750
ENFANT 2 1050
ENFANT 3 1350
Datenblatt PDF
Zeichnung PDF
Ausschreibungstext PDF
Datenblatt PDF
Zeichnung PDF
Ausschreibungstext PDF
Datenblatt PDF
Zeichnung PDF
Ausschreibungstext PDF
-->Zurück zur Übersicht KITA-WASCHTISCHE